Steinbach-Hallenberg:
3 ZKB Wohnung - mit wahlweise Stellplatz o. Garage
Objekt-Nr.: CIWM091 K7

Dachterrasse an der Küche

Bad mit Wanne, Dusche , WC und Waschtisch

Küche mit Zugang Dachterrasse

Flur

Kinderzimmer / Büro

Wohnzimmer

Schlafzimmer

Haus von rechts

Hausansicht von Links mit Parkflächen









mtl. Kaltmiete:
515,20 €
Wohnfläche ca.:
92 m²
Zimmeranzahl:
3
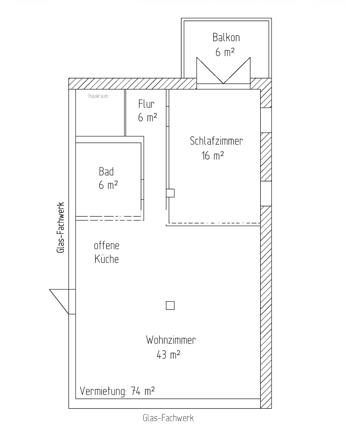
Großzügig geschnittene helle und sonnige 3-Zimmer-Wohnung im 1. OG eines Wohn- und Geschäftshauses in zentraler Ortslage.
Vom mittig liegenden Flur erreichen Sie alle Zimmer - außer das Kinderzimmer, dass auch als Büro oder Arbeitszimmer Verwendung finden kann.
In Wohn- und Schlafzimmer ist TV-Anschluss für die Kabelgemeinschaft „Hallenburg" vorhanden.
Die geräumige Wohnküche hat den direkten Zugang zur ca. 25 qm Dachterrasse - hier kann man entspannt klönen oder gemütlich den Feierabend genießen.
Parkplatz ist optional direkt vor dem Haus auf dem Grundstück.
1x PKW Parkplatz für 25 € anzumieten (wahlw. Garage 35€)
Miete: 788,20 € warm (273,00 € NKV incl.)
2 Kaltmieten 1030,40€
Vereinbaren Sie jetzt gleich einen Besichtigungstermin mit uns, um sich selbst von der Wohnung ein Bild zu machen.
COKUS Immobilien
☎️ Festnetz: 03683 463 99 99
📧 office@cokus.immobilien
📍 Büro: Allendestraße 18 (Büro) • D 98574 Schmalkalden
oder Hr. Voß 015161061530
Wohnungstyp: Etagenwohnung
Etage: 1
Etagenanzahl: 2
Warmmiete inkl. NK: 788,20 €
Nebenkosten: 273 €
Kaution / Genossenschaftsanteile: 2 Kaltmieten 1030,40 €
Heizkosten: sind in den Nebenkosten enthalten
Provision: Provisionsfrei
Bad: Dusche, Wanne, Fenster
Anzahl Schlafzimmer: 2
Anzahl Badezimmer: 1
Terrasse: 1
Einliegerwohnung: ja
Keller: nein
Umgebung: Apotheke, Bus, Einkaufscenter, Einkaufsmöglichkeit, Grundschule, Kindergarten, Spielplatz, Wald, Wohnanlage, Wohngegend
Anzahl der Parkflächen: 1 x Außenstellplatz, pro Stück 25 €; 1 x Garage, pro Stück 35 €
Ausblick: Berge
Letzte Modernisierung/ Sanierung: 2010
Qualität der Ausstattung: normal
Bezugsfrei ab: sofort
Bodenbelag: Fliesen, Laminat
Zustand: unrenoviert
Es wird Provisionsfrei vermietet
Die von uns gemachten Informationen beruhen auf Angaben des Vermieters bzw. der Vermieterin. Für die Richtigkeit und Vollständigkeit der Angaben kann keine Gewähr bzw. Haftung übernommen werden. Irrtümer sind vorbehalten.
Wir weisen auf unsere Allgemeinen Geschäftsbedingungen hin. Durch weitere Inanspruchnahme unserer Leistungen erklären Sie die Kenntnis und Ihr Einverständnis.
Das könnte Ihnen auch gefallen

COKUS Immobilien
Herr Markus Voß
Allendestraße18
98574 Schmalkalden
Büro: +49 3683 4639999




























