Schmalkalden:
Schöne Erdgeschosswohnung mit Balkon (Terrasse) und Stellplatz
Objekt-Nr.: CIWM113 K2

Wohn- und Esszimmer

Glas-Fachwerkhaus

Wohnzimmer

Haus Vorderansicht

Schlafzimmer

Bad mit Waschtisch

Dusche und WC im Bad

Balkon / Terrasse

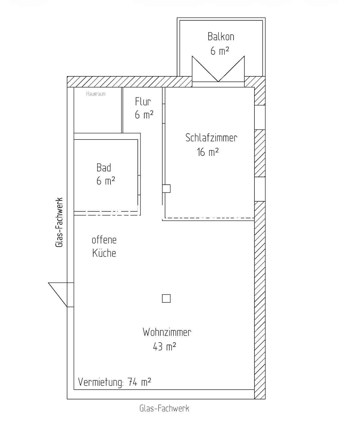
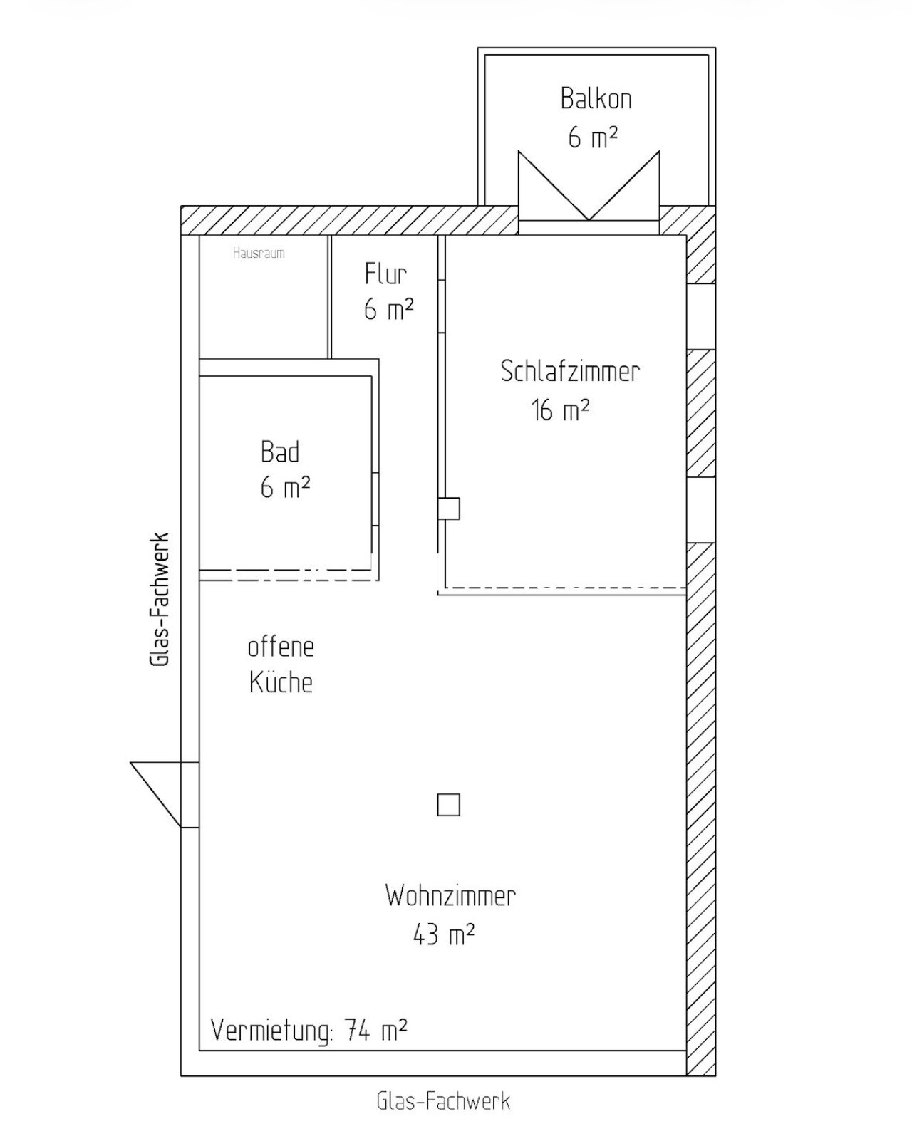
Grundriss Glas-Fachwerk EG









mtl. Kaltmiete:
499,50 €
Wohnfläche ca.:
74 m²
Zimmeranzahl:
2
Schöne helle Wohnung in einem teilverglasten Fachwerkhaus mit Parkettfußboden.
Neuwertiges Bad.
Wohn- & Esszimmer mit vorhandener offener Küche.
Das Schlafzimmer hat einen Balkon, der in Richtung des kleinen Flusses Schmalkalde ausgerichtet ist.
COKUS Immobilien
☎️ Festnetz: 03683 463 99 99
📧 office@cokus.immobilien
📍 Büro: Allendestraße 18 (Büro) • D 98574 Schmalkalden
oder Hr. Voß 015161061530
Etagenanzahl: 2
Warmmiete inkl. NK: 739,50 €
Nebenkosten: 240 €
Kaution / Genossenschaftsanteile: 2 Kaltmieten 999 €
Heizkosten: sind in den Nebenkosten enthalten
Provisionspflichtig: nein
Küche: Einbauküche, offen
Bad: Dusche, Fenster
Anzahl Schlafzimmer: 1
Anzahl Badezimmer: 1
Terrasse: 1
Keller: nein
Umgebung: Apotheke, Bahnhof, Bus, Einkaufscenter, Einkaufsmöglichkeit, Fitness, Grundschule, Kindergarten, Krankenhaus, Polizei, Spielplatz, weiterführende Schule, Wohnanlage, Wohngegend
Anzahl der Parkflächen: 1 x Außenstellplatz, pro Stück 30 €
Möbliert: Teilmöbliert
Ausblick: Berge
Letzte Modernisierung/ Sanierung: 2015
Qualität der Ausstattung: normal
Baujahr: 1911
Bodenbelag: Parkett
Zustand: gepflegt
Energieklasse: E
Heizung: Zentralheizung
Befeuerungsart: Gas
Energieausweistyp: Bedarfsausweis - gültig vom 07.02.2025 bis 07.02.2035
Energieeffizienz-Klasse: E
Baujahr laut Energieausweis: 1911
Die von uns gemachten Informationen beruhen auf Angaben des Eigentümers bzw. der Eigentümerin. Für die Richtigkeit und Vollständigkeit der Angaben kann keine Gewähr bzw. Haftung übernommen werden. Irrtümer sind vorbehalten.
Wir weisen auf unsere Allgemeinen Geschäftsbedingungen hin. Durch weitere Inanspruchnahme unserer Leistungen erklären Sie die Kenntnis und Ihr Einverständnis.
Das könnte Ihnen auch gefallen

COKUS Immobilien
Herr Markus Voß
Allendestraße18
98574 Schmalkalden
Büro: +49 3683 4639999




























