Schmalkalden:
Ensemble mit Charme und Rendite: Haupthaus, Glas-Fachwerk-Wohnhaus und Hinterhaus
Objekt-Nr.: CIHK061

Haupthaus

Glas-Fachwerkhaus

Überdachter Hof und Zugang Hinterhaus

Hinterhaus Terrasse

Ausbaureserve/Werkstatt

Stützmauer und Zaunanlage

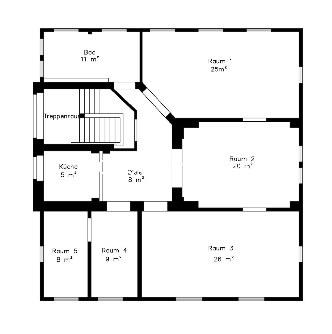
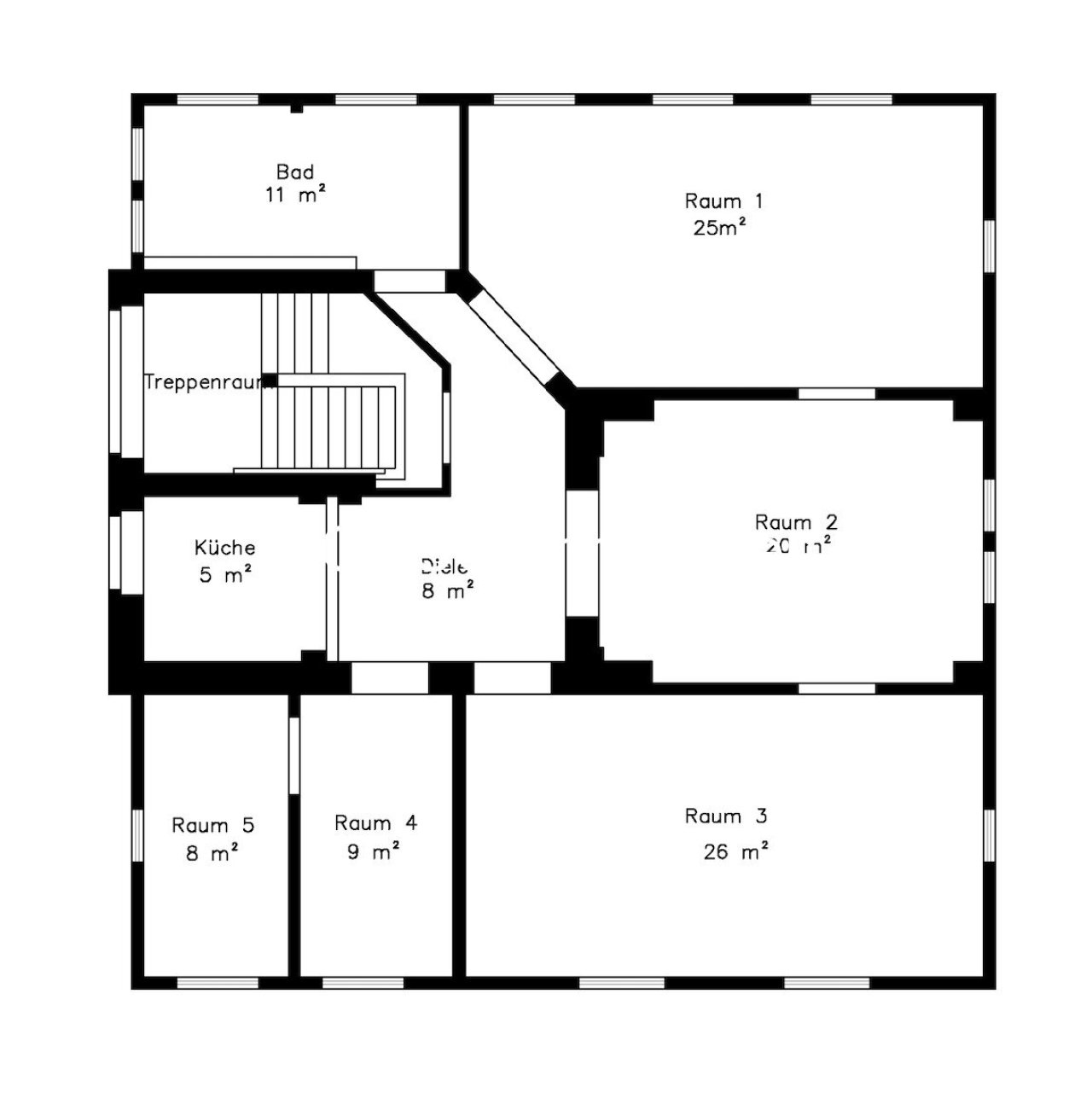
Grundriss Haupthaus EG

Grundriss Haupthaus EG

Grundriss Hauptgebäude DG

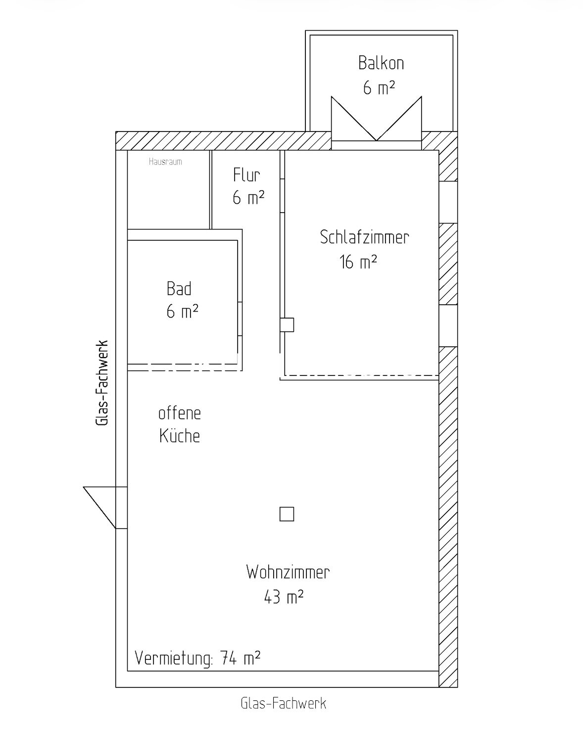
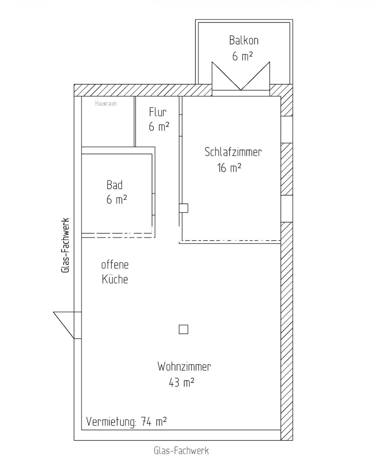
Grundriss Glas-Fachwerk EG

Grundriss Glas-Fachwerk OG

Grundriss Hintrehaus












Preis:
575.000 €
Baujahr:
1911
Willkommen in einem außergewöhnlich vielseitigen Wohnensemble in zentrumsnaher Lage. Das freistehende Haupthaus präsentiert sich klassisch und repräsentativ zur Straße, flankiert von einem charakterstarken Glas-Fachwerkhaus im Hof sowie einem modernisierten Hinterhaus auf einer Ebene. Parkmöglichkeiten befinden sich direkt auf dem Grundstück; die Außenanlagen umfassen befestigte Wege und Hofbereiche, Terrasse, Zaun- und Stützmaueranlagen – ideal für den gepflegten Auftritt und den praktischen Alltag.
Das Haupthaus bietet drei eigenständige Wohnungen über Erd-, Ober- und Dachgeschoss.…
Jede Einheit ist großzügig geschnitten und fügt sich in die solide, überwiegend modernisierte Bausubstanz ein. Typisch für die Bauzeit sind die massiven Decken und die überzeugende Raumhöhe; moderne Fenster und Zentralheizung sorgen für Komfort und verlässliche Vermietbarkeit. Die Straßenfassade mit Stellplätzen davor schafft Sichtbarkeit und bequemes Ankommen – eine starke Visitenkarte für Mieter und Besucher.
Im Hof setzt das Glas-Fachwerkhaus einen architektonischen Akzent: große Glasflächen bringen Licht und Loft-Atmosphäre in zwei nahezu identische Wohnungen. Beide Einheiten punkten mit weitläufigem Wohnbereich und offener Küche, separatem Schlafzimmer, Tageslichtbad und einem Balkon – perfekt für Menschen, die Großzügigkeit und besondere Gestaltung lieben. Die Außentreppe erschließt die obere Wohnung direkt, während die markante Fachwerkoptik dem Gesamtensemble eine unverwechselbare Identität verleiht.
Abgerundet wird das Angebot durch das Hinterhaus: ein vollständig modernisiertes Einfamilienhaus in Holzrahmenbauweise auf einer Ebene. Der ebenerdige Grundriss ist wie gemacht für komfortables Wohnen – ob als Eigennutz, für Homeoffice-Konzepte oder als hochwertige Einzelvermietung. Der überdachte Zugang aus dem Hof bietet Wetterschutz und Privatsphäre, die zeitgemäße Haustechnik sorgt für effizienten Betrieb.
In Summe entsteht ein stimmiges Gesamtpaket mit sechs attraktiven Wohneinheiten und klaren Vorteilen: vielfältige Grundrisse für unterschiedliche Zielgruppen, starke Außenwirkung durch die Kombination aus klassischem Haupthaus und modernem Glas-Fachwerk, sowie praktische Extras wie Stellplätze, Werkstatt/Garage/Ausbaureserve und gepflegte Außenflächen.
Ein Ensemble mit Substanz, Charakter und besten Voraussetzungen für nachhaltige Mieterträge – oder für Menschen, die Wohnen, Arbeiten und Vermieten clever kombinieren möchten.
COKUS Immobilien
☎️ Festnetz: 03683 463 99 99
📧 office@cokus.immobilien
📍 Büro: Allendestraße 18 (Büro) • D 98574 Schmalkalden
oder Hr. Voß 015161061530
Preis : 905,50 € pro m²
x-fache Miete: 13,7
Provisionspflichtig: ja
Provision: 2,0% incl. Mwst.
Letzte Modernisierung/ Sanierung: 1994
Qualität der Ausstattung: normal
Grundstück ca.: 895 m²
Gesamtfläche ca.: 635,50 m²
Wohnfläche ca.: 557,40 m²
ausbaubare Wohnfläche: 78 m²
Betriebskosten umgelegt: 1.750 €
Nicht umgelegte Kosten: 350 €
Mieteinnahmen p.a. (Soll): 48.206,40 €
Mieteinnahmen p.a. (Ist): 42.012 €
Etagenanzahl: 3
Kubatur: 2.445 m³
Umgebung: Apotheke, Bahnhof, Bus, Einkaufscenter, Einkaufsmöglichkeit, Fitness, Grundschule, Kindergarten, Krankenhaus, ruhige Gegend, Polizei, Post, Spielplatz, weiterführende Schule, Wohngegend
Anzahl der Parkflächen: 5 x Außenstellplatz
Balkon: 2
Terrasse: 2
Garten/-mitbenutzung: ja
Keller: teil unterkellert
vermietet: ja
Ausblick: Berge
Zustand: gepflegt
Energieklasse: E
Fußweg zu Öffentl. Verkehrsmitteln: 2 Minute(n)
Fahrzeit zum nächsten Hauptbahnhof: 25 Minute(n)
Fahrzeit zur nächsten BAB: 35 Minute(n)
Fahrzeit zum nächsten Flughafen: 60 Minute(n)
Heizung: Zentralheizung
Befeuerungsart: Gas
Energieausweistyp: Bedarfsausweis - gültig vom 07.02.2025 bis 07.02.2035
Energieeffizienz-Klasse: E
Baujahr laut Energieausweis: 1911
Bei Abschluss eines Kaufvertrages wird eine Vermittlungs-/ Nachweisprovision in Höhe von 2,0 % inklusive 19 % Mehrwertsteuer auf den Kaufpreis vom Käufer fällig.
Die von uns gemachten Informationen beruhen auf Angaben des Eigentümers bzw. der Eigentümerin. Für die Richtigkeit und Vollständigkeit der Angaben kann keine Gewähr bzw. Haftung übernommen werden. Irrtümer sind vorbehalten.
Wir weisen auf unsere Allgemeinen Geschäftsbedingungen hin. Durch weitere Inanspruchnahme unserer Leistungen erklären Sie die Kenntnis und Ihr Einverständnis.

COKUS Immobilien
Herr Markus Voß
Allendestraße18
98574 Schmalkalden
Büro: +49 3683 4639999
